EMG Hürth

Projektbeschreibung

Die komplexe Bauaufgabe im laufenden Schulbetrieb bedingt zwei Hauptbauabschnitte,
wobei eine weitere Unterteilung der zweiten Realisierungsphase in weitere zwei Teilabschnitte gegliedert wird.
Erster Bauabschnitt der Gesamtsanierung des Ernst-Mach-Gymnasiums ist Baukörper B + Erweiterung Speiseraum / Forum, Neugestaltung Vorplatz, Speiseraumgarten, Schulhofanbindungen.

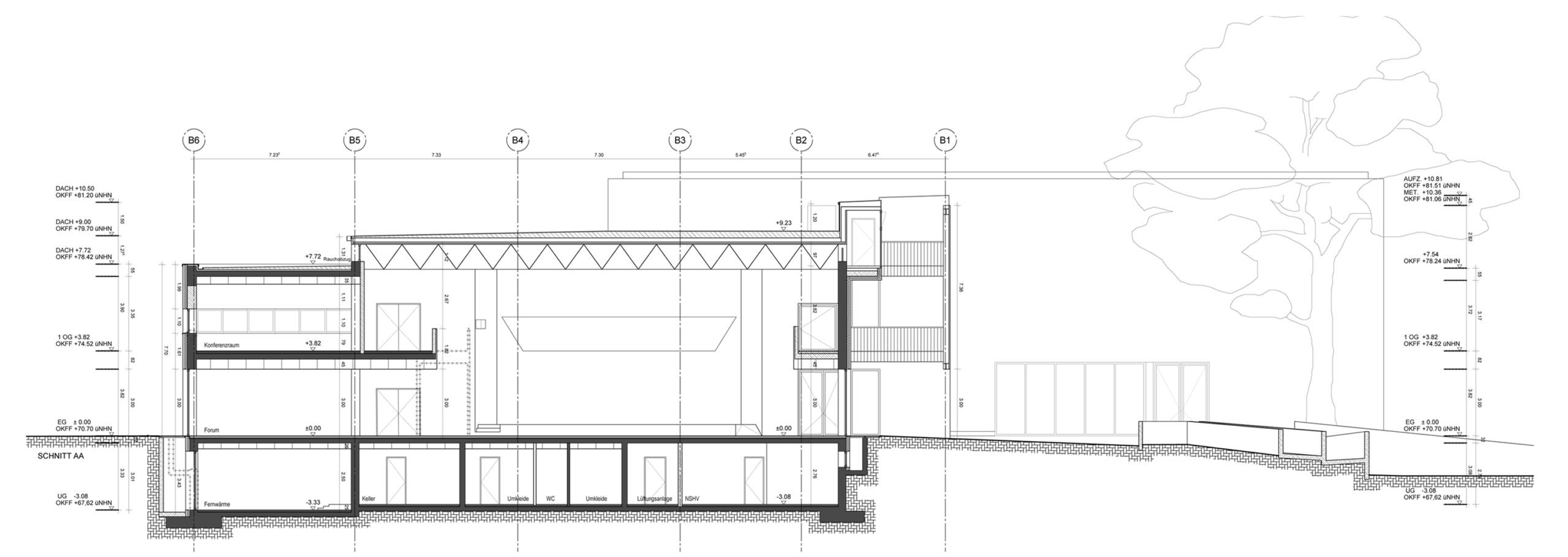
Vorplatz und Haupteingang werden schwellenfrei umgestaltet. Die zentrale Aufzugsanlage, die alle Ebenen in den Baukörpern A, B, C und E schwellenfrei erschließt, liegt unmittelbar am Haupteingang. Die Verwaltungszone wird so umgestaltet, dass EG (mit Büros + Sekretariat) und 1. OG (Lehrerzimmer, Büros) über eine interne Treppe miteinander verbunden sind.

Eine freie Treppe erschließt Erdgeschoss und 1. Obergeschoss mit direkter Anbindung an die Verwaltungs- und Konferenzzone sowie zu einer umlaufenden Galerie im Forum und zu den angrenzenden Baukörper A, C und E. Im Zentrum der Schulanlage entsteht ein neues Forum für ca. 450 Personen mit Bühnen-Podium und räumlich zuschaltbarer (Schiebewandanlage) Speiseraumzone (150 Sitzplätze).
Forum und Speiseraum haben jeweils direkte Anbindungen an die umgebenden Freibereiche. Die Gebäudeanlage wird durch Kernsanierung/Umbau aber auch durch ergänzende neue Baukörper gebildet und entspricht nach der Sanierung den funktionalen, brandschutztechnischen und den aktuellen energetischen Anforderungen.

Die Betriebskosten können entsprechend optimiert werden.
Die Erweiterungsbauten sind Massivkonstruktionen, die energetische Ertüchtigung der Altbaufassade erfolgt durch eine neue Wärmeverbundfassade mit Putz bzw. durch eine vorgehängte Plattenfassade.

Details

Bauherr: Stadt Hürth

Bauzeit: 09/2015 - 12/2023

Gesamtbaukosten: 32,5 Mio.

Brutto Grundfläche: 12.773 m²

Brutto Rauminhalt: 41.768 m³

Leistungsphasen: 1-9

Planungszeit: 07/2012 - 09/2020

Fertigstellung: 12/2023

Projektleitung: Helmut Heuer, Gundolf Wermelskirchen