Kerpen Community Center

Project Description

New Construction of a Community Center

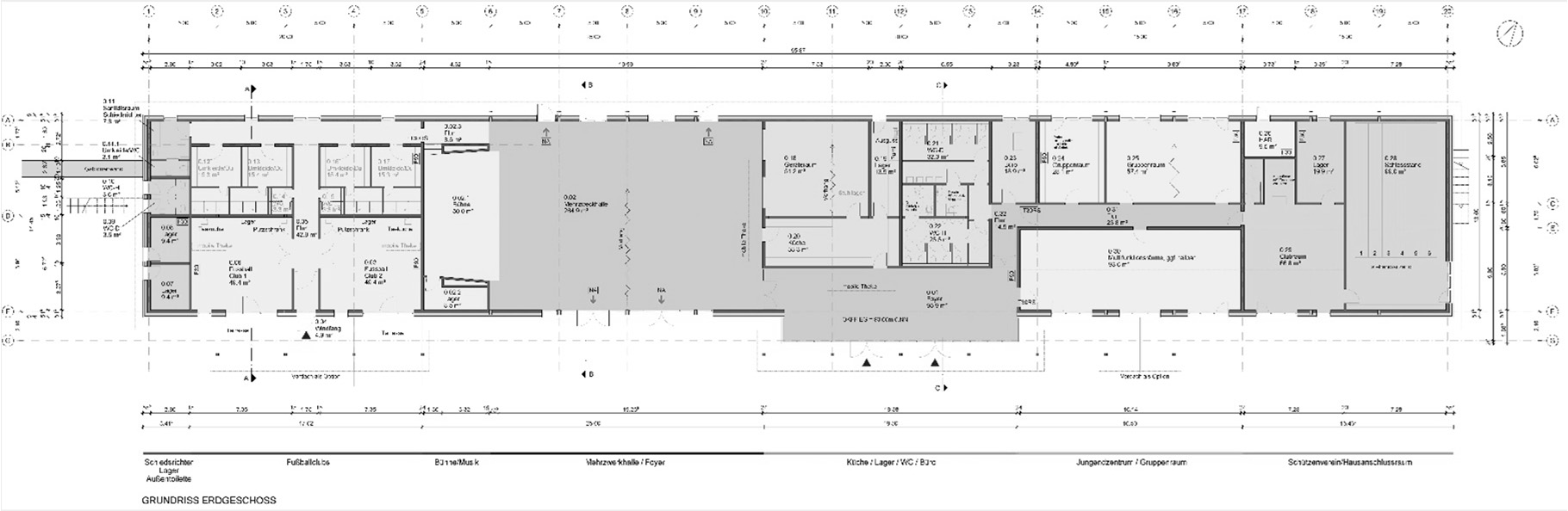
The community center is divided into 4 functional areas.
These include the football area with club rooms, changing rooms, and sanitary facilities; an assembly venue with a multi-purpose hall and an associated kitchen and sanitary unit; a group room; and a separate area for the shooting club.

The long and narrow, barn-like building structure allows for numerous separate access points to the various functional areas, which are utilized by different clubs and groups. Accessed via the central “meeting” forecourt, the main entrance with its foyer consolidates all functions. The plaza area in front of the building offers ample space for events.

A supply and exhaust air system is planned for the multi-purpose hall and the changing rooms/shower areas. A central hot water supply is exclusively provided for the football area.

The new artificial turf football pitch meets all criteria for Bundesliga matches and is equipped with a floodlight system. Additionally, there is a public kickabout pitch and a grass sports area.

All other areas are supplied by decentralized systems. Heat generation is provided by an air-to-water heat pump and a gas condensing boiler. The entire building is equipped with underfloor heating.

Details

Client: City of Kerpen

Construction Period: 03/2016 - 06/2018

Total Construction Costs: 6.4 million €

Gross Floor Area: 2,105 m²

Gross Volume: 9,910 m²

Service Phases: 1 - 9

Planning Period: 05/2014 - 05/2016

Completion: 06/2018

Project Management: Helmut Heuer